製品紹介 product

product

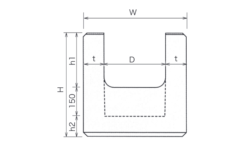
FPU 側溝(福岡県道路用コンクリート製品)

縦断タイプ

寸法・重量表
寸法・重量表
コンクリート蓋
レジン集水蓋

街路タイプ

寸法・重量表
コンクリート蓋
レジン集水蓋

コーナー用側溝本体

寸法・重量表

コーナー用コンクリート蓋

寸法・重量表

コーナー用割付

桝規格

縁石寸法
桝本体寸法

グレーチング規格

寸法・重量表

製品紹介一覧を表示

お問い合わせ Contact